エリアから
検索
路線・駅から
検索
フリーワード
検索
お問い合わせ
相談窓口
問合せ/資料請求
無料
0120-350-323
平日9:00~18:00
検索履歴
Myリスト
気になる
を集めて
Myリストを作りましょう!
エリアから検索
路線・駅から検索
検索履歴
Myリスト
お問い合わせ相談窓口
TEL
無料電話相談( 0120-350-323)
HOME
東京都
アサヒビル
アサヒビル
物件概要
所在地
東京都 台東区台東2-31-3
最寄り駅
東京メトロ 「仲御徒町」駅 徒歩6分
日比谷線
首都圏新都市鉄道 「新御徒町」駅 徒歩9分
つくばエクスプレス線
都営地下鉄 「新御徒町」駅 徒歩9分
都営大江戸線
JR 「御徒町」駅 徒歩10分
京浜東北線 / 山手線
規模
地上6階
竣工
1991年11月 リニューアル有
耐震
新耐震
EV
1基
基準階面積
35.68坪
アサヒビル 募集中の区画
一括選択
選択クリア
階数
面積
賃料+共益費(税別)
敷金
入居日
図面
詳細
問合せ
気になる
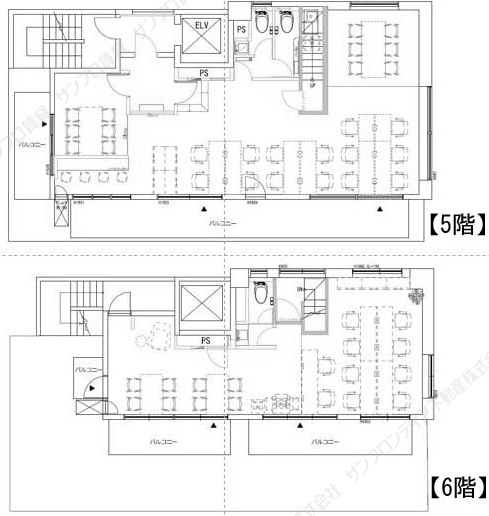
5-6F
43.85坪
17,000円/坪
745,450円/月
4ヶ月
2026/1/31
詳細を見る
問合せ
チェックした区画を一括で
気になる
問合せ
他のビルの
募集中の区画を見つける
エリアで探す
路線・駅で探す
ビル名で探す
TOPへ
フリーワード検索
閉じる