エリアから
検索
路線・駅から
検索
フリーワード
検索
お問い合わせ
相談窓口
問合せ/資料請求
無料
0120-350-323
平日9:00~18:00
検索履歴
Myリスト
気になる
を集めて
Myリストを作りましょう!
エリアから検索
路線・駅から検索
検索履歴
Myリスト
お問い合わせ相談窓口
TEL
無料電話相談( 0120-350-323)
HOME
東京都
ゴム産業会館
ゴム産業会館
物件概要
所在地
東京都 豊島区目白2-3-3
最寄り駅
東京メトロ 「雑司が谷」駅 徒歩4分
副都心線
都電 「鬼子母神前」駅 徒歩4分
荒川線
都電 「学習院下」駅 徒歩5分
荒川線
規模
地上5階
竣工
1980年07月
耐震
旧耐震
EV
1基
ゴム産業会館 募集中の区画
一括選択
選択クリア
階数
面積
賃料+共益費(税別)
敷金
入居日
図面
詳細
問合せ
気になる
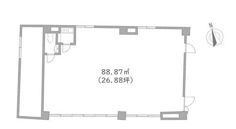
1F
26.88坪
14,881円/坪
400,000円/月
3ヶ月
即日
詳細を見る
問合せ
チェックした区画を一括で
気になる
問合せ
他のビルの
募集中の区画を見つける
エリアで探す
路線・駅で探す
ビル名で探す
TOPへ
フリーワード検索
閉じる