エリアから
検索
路線・駅から
検索
フリーワード
検索
お問い合わせ
相談窓口
問合せ/資料請求
無料
0120-350-323
平日9:00~18:00
検索履歴
Myリスト
気になる
を集めて
Myリストを作りましょう!
エリアから検索
路線・駅から検索
検索履歴
Myリスト
お問い合わせ相談窓口
TEL
無料電話相談( 0120-350-323)
HOME
東京都
大井町センタービル
大井町センタービル
物件概要
所在地
東京都 品川区大井1-24-5
最寄り駅
東京臨海高速鉄道 「大井町」駅 徒歩3分
東京りんかい線
JR 「大井町」駅 徒歩5分
京浜東北線
東急電鉄 「大井町」駅 徒歩5分
東急大井町線
東急電鉄 「下神明」駅 徒歩12分
東急大井町線
規模
地上7階 地下1階
竣工
1987年12月
耐震
新耐震
EV
2基
基準階面積
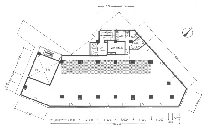
184.61坪
大井町センタービル 募集中の区画
一括選択
選択クリア
階数
面積
賃料+共益費(税別)
敷金
入居日
図面
詳細
問合せ
気になる
3F
185.32坪
お問合せください
12ヶ月
相談
詳細を見る
問合せ
4F
184.61坪
お問合せください
12ヶ月
相談
詳細を見る
問合せ
5F
111.83坪
お問合せください
12ヶ月
相談
詳細を見る
問合せ
チェックした区画を一括で
気になる
問合せ
他のビルの
募集中の区画を見つける
エリアで探す
路線・駅で探す
ビル名で探す
TOPへ
フリーワード検索
閉じる