エリアから
検索
路線・駅から
検索
フリーワード
検索
お問い合わせ
相談窓口
問合せ/資料請求
無料
0120-350-323
平日9:00~18:00
検索履歴
Myリスト
気になる
を集めて
Myリストを作りましょう!
エリアから検索
路線・駅から検索
検索履歴
Myリスト
お問い合わせ相談窓口
TEL
無料電話相談( 0120-350-323)
HOME
東京都
ニューオータニガーデンコート
ニューオータニガーデンコート
物件概要
所在地
東京都 千代田区紀尾井町4-1
最寄り駅
東京メトロ 「赤坂見附」駅 徒歩2分
丸ノ内線 / 銀座線
東京メトロ 「永田町」駅 徒歩7分
半蔵門線 / 南北線 / 有楽町線
東京メトロ 「麹町」駅 徒歩10分
有楽町線
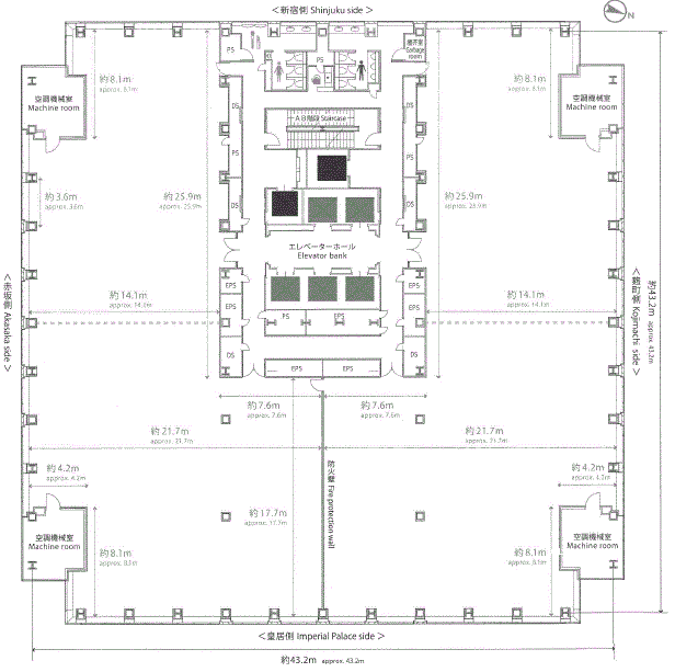
規模
地上30階 地下3階
竣工
1991年01月 リニューアル有
耐震
新耐震
EV
13基
基準階面積
448.29坪
ニューオータニガーデンコート 募集中の区画
一括選択
選択クリア
階数
面積
賃料+共益費(税別)
敷金
入居日
図面
詳細
問合せ
気になる
17F
423.43坪
お問合せください
12ヶ月
2026/7/1
詳細を見る
問合せ
チェックした区画を一括で
気になる
問合せ
他のビルの
募集中の区画を見つける
エリアで探す
路線・駅で探す
ビル名で探す
TOPへ
フリーワード検索
閉じる