エリアから
検索
路線・駅から
検索
フリーワード
検索
お問い合わせ
相談窓口
問合せ/資料請求
無料
0120-350-323
平日9:00~18:00
検索履歴
Myリスト
気になる
を集めて
Myリストを作りましょう!
エリアから検索
路線・駅から検索
検索履歴
Myリスト
お問い合わせ相談窓口
TEL
無料電話相談( 0120-350-323)
HOME
神奈川県
川崎ダイヤビル
川崎ダイヤビル
物件概要
所在地
神奈川県 川崎市川崎区砂子2-4-13
最寄り駅
JR南武線「川崎」駅 徒歩4分
JR東海道本線「川崎」駅 徒歩4分
京浜急行大師線「京急川崎」駅 徒歩4分
京浜急行本線「京急川崎」駅 徒歩4分
JR上野東京ライン「川崎」駅 徒歩4分
JR京浜東北線「川崎」駅 徒歩4分
駅をもっと見る
規模
地上9階 地下1階
竣工
2002年07月
耐震
新耐震
EV
2基
基準階面積
171.00坪
川崎ダイヤビル 募集中の区画
一括選択
選択クリア
階数
面積
賃料+共益費(税別)
敷金
入居日
図面
詳細
問合せ
気になる
5F
171.62坪
お問合せください
お問合せください
2026/4
詳細を見る
問合せ
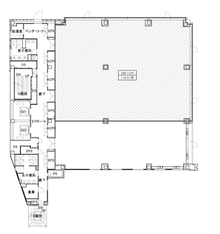
6F
118.01坪
お問合せください
お問合せください
2026/2
詳細を見る
問合せ
チェックした区画を一括で
気になる
問合せ
他のビルの
募集中の区画を見つける
エリアで探す
路線・駅で探す
ビル名で探す
TOPへ
フリーワード検索
閉じる