エリアから
検索
路線・駅から
検索
フリーワード
検索
お問い合わせ
相談窓口
問合せ/資料請求
無料
0120-350-323
平日9:00~18:00
検索履歴
Myリスト
気になる
を集めて
Myリストを作りましょう!
エリアから検索
路線・駅から検索
検索履歴
Myリスト
お問い合わせ相談窓口
TEL
無料電話相談( 0120-350-323)
HOME
東京都
大滝ビル
大滝ビル
物件概要
所在地
東京都港区港南2-11-19
最寄り駅
京浜急行本線「北品川」駅 徒歩11分
JR京浜東北線「品川」駅 徒歩12分
JR山手線「品川」駅 徒歩12分
東海道新幹線「品川」駅 徒歩12分
JR東海道本線「品川」駅 徒歩12分
JR上野東京ライン「品川」駅 徒歩12分
JR横須賀線「品川」駅 徒歩12分
京浜急行本線「品川」駅 徒歩12分
東京モノレール羽田線「天王洲アイル」駅 徒歩13分
東京りんかい線「天王洲アイル」駅 徒歩13分
駅をもっと見る
規模
地上8階 地下1階
竣工
1992年01月
耐震
新耐震
EV
2基
基準階面積
132.85坪
大滝ビル 募集中の区画
一括選択
選択クリア
階数
面積
賃料+共益費(税別)
敷金
入居日
図面
詳細
問合せ
気になる
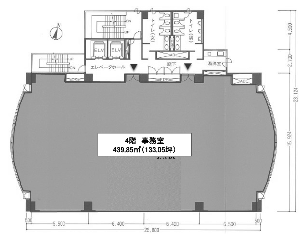
4F
133.05坪
お問合せください
12ヶ月
即日
詳細を見る
問合せ
チェックした区画を一括で
気になる
問合せ
他のビルの
募集中の区画を見つける
エリアで探す
路線・駅で探す
ビル名で探す
TOPへ
フリーワード検索
閉じる