エリアから
検索
路線・駅から
検索
フリーワード
検索
お問い合わせ
相談窓口
問合せ/資料請求
無料
0120-350-323
平日9:00~18:00
検索履歴
Myリスト
気になる
を集めて
Myリストを作りましょう!
エリアから検索
路線・駅から検索
検索履歴
Myリスト
お問い合わせ相談窓口
TEL
無料電話相談( 0120-350-323)
HOME
東京都
ラベリテAKASAKA
ラベリテAKASAKA
物件概要
所在地
東京都 港区元赤坂1-5-7
最寄り駅
東京メトロ銀座線「赤坂見附」駅 徒歩4分
東京メトロ丸ノ内線「赤坂見附」駅 徒歩4分
東京メトロ半蔵門線「永田町」駅 徒歩8分
東京メトロ南北線「永田町」駅 徒歩8分
東京メトロ有楽町線「永田町」駅 徒歩8分
東京メトロ千代田線「赤坂」駅 徒歩9分
駅をもっと見る
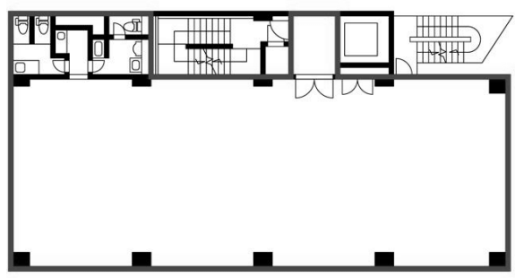
規模
地上8階
竣工
1987年03月
耐震
新耐震
EV
1基
基準階面積
69.23坪
ラベリテAKASAKA 募集中の区画
一括選択
選択クリア
階数
面積
賃料+共益費(税別)
敷金
入居日
図面
詳細
問合せ
気になる
6F
69.23坪
お問合せください
お問合せください
2026/1/1
詳細を見る
問合せ
8F
59.04坪
お問合せください
お問合せください
2026/2/17
詳細を見る
問合せ
チェックした区画を一括で
気になる
問合せ
他のビルの
募集中の区画を見つける
エリアで探す
路線・駅で探す
ビル名で探す
TOPへ
フリーワード検索
閉じる