エリアから
検索
路線・駅から
検索
フリーワード
検索
お問い合わせ
相談窓口
問合せ/資料請求
無料
0120-350-323
平日9:00~18:00
検索履歴
Myリスト
気になる
を集めて
Myリストを作りましょう!
エリアから検索
路線・駅から検索
検索履歴
Myリスト
お問い合わせ相談窓口
TEL
無料電話相談( 0120-350-323)
HOME
東京都
赤坂加藤ビル
赤坂加藤ビル
物件概要
所在地
東京都 港区赤坂2-22-15
最寄り駅
東京メトロ南北線「六本木一丁目」駅 徒歩4分
東京メトロ千代田線「赤坂」駅 徒歩8分
東京メトロ南北線「溜池山王」駅 徒歩9分
東京メトロ銀座線「溜池山王」駅 徒歩9分
駅をもっと見る
規模
地上5階
竣工
1993年02月
EV
1基
基準階面積
66.00坪
赤坂加藤ビル 募集中の区画
一括選択
選択クリア
階数
面積
賃料+共益費(税別)
敷金
入居日
図面
詳細
問合せ
気になる
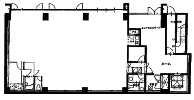
1F
43.30坪
お問合せください
12ヶ月
即日
詳細を見る
問合せ
チェックした区画を一括で
気になる
問合せ
他のビルの
募集中の区画を見つける
エリアで探す
路線・駅で探す
ビル名で探す
TOPへ
フリーワード検索
閉じる