エリアから
検索
路線・駅から
検索
フリーワード
検索
お問い合わせ
相談窓口
問合せ/資料請求
無料
0120-350-323
平日9:00~18:00
検索履歴
Myリスト
気になる
を集めて
Myリストを作りましょう!
エリアから検索
路線・駅から検索
検索履歴
Myリスト
お問い合わせ相談窓口
TEL
無料電話相談( 0120-350-323)
HOME
東京都
新虎ノ門実業会館
新虎ノ門実業会館
物件概要
所在地
東京都 港区虎ノ門1-1-21
最寄り駅
東京メトロ銀座線「虎ノ門」駅 徒歩1分
東京メトロ丸ノ内線「霞ケ関」駅 徒歩5分
東京メトロ日比谷線「霞ケ関」駅 徒歩5分
東京メトロ千代田線「霞ケ関」駅 徒歩7分
東京メトロ日比谷線「虎ノ門ヒルズ」駅 徒歩9分
駅をもっと見る
規模
地上9階 地下3階
竣工
1965年11月
耐震
新耐震
EV
2基
基準階面積
374.00坪
新虎ノ門実業会館 募集中の区画
一括選択
選択クリア
階数
面積
賃料+共益費(税別)
敷金
入居日
図面
詳細
問合せ
気になる
B1F
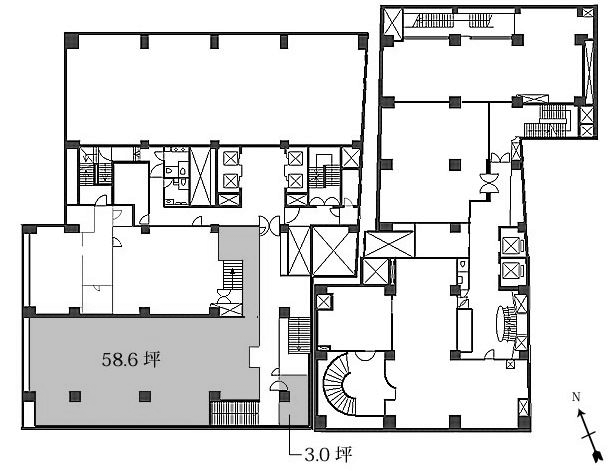
54.60坪
お問合せください
お問合せください
相談
詳細を見る
問合せ
8F
96.25坪
お問合せください
お問合せください
即日
詳細を見る
問合せ
チェックした区画を一括で
気になる
問合せ
他のビルの
募集中の区画を見つける
エリアで探す
路線・駅で探す
ビル名で探す
TOPへ
フリーワード検索
閉じる