エリアから
検索
路線・駅から
検索
フリーワード
検索
お問い合わせ
相談窓口
問合せ/資料請求
無料
0120-350-323
平日9:00~18:00
検索履歴
Myリスト
気になる
を集めて
Myリストを作りましょう!
エリアから検索
路線・駅から検索
検索履歴
Myリスト
お問い合わせ相談窓口
TEL
無料電話相談( 0120-350-323)
HOME
東京都
新橋六丁目ビル
新橋六丁目ビル
物件概要
所在地
東京都 港区新橋6-9-4
最寄り駅
都営三田線「御成門」駅 徒歩7分
都営大江戸線「大門」駅 徒歩7分
都営浅草線「大門」駅 徒歩7分
新交通ゆりかもめ「汐留」駅 徒歩8分
都営大江戸線「汐留」駅 徒歩8分
駅をもっと見る
規模
地上8階 地下2階
竣工
1987年12月 リニューアル有
耐震
新耐震
EV
2基
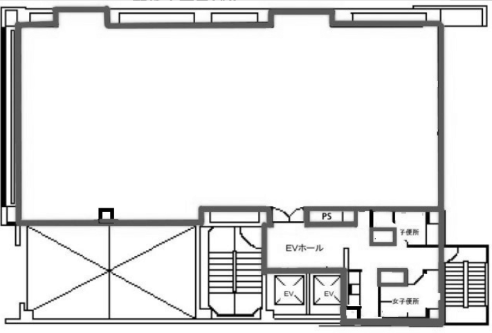
基準階面積
76.79坪
新橋六丁目ビル 募集中の区画
一括選択
選択クリア
階数
面積
賃料+共益費(税別)
敷金
入居日
図面
詳細
問合せ
気になる
2F
45.71坪
お問合せください
お問合せください
2026/3中旬
詳細を見る
問合せ
3F
76.79坪
お問合せください
お問合せください
2026/2/10
詳細を見る
問合せ
チェックした区画を一括で
気になる
問合せ
他のビルの
募集中の区画を見つける
エリアで探す
路線・駅で探す
ビル名で探す
TOPへ
フリーワード検索
閉じる