エリアから
検索
路線・駅から
検索
フリーワード
検索
お問い合わせ
相談窓口
問合せ/資料請求
無料
0120-350-323
平日9:00~18:00
検索履歴
Myリスト
気になる
を集めて
Myリストを作りましょう!
エリアから検索
路線・駅から検索
検索履歴
Myリスト
お問い合わせ相談窓口
TEL
無料電話相談( 0120-350-323)
HOME
東京都
三恵ビル
三恵ビル
物件概要
所在地
東京都 千代田区神田和泉町1-3-1
最寄り駅
JR京浜東北線「秋葉原」駅 徒歩3分
JR山手線「秋葉原」駅 徒歩3分
JR総武線「秋葉原」駅 徒歩3分
東京メトロ日比谷線「秋葉原」駅 徒歩3分
つくばエクスプレス線「秋葉原」駅 徒歩3分
都営新宿線「岩本町」駅 徒歩7分
東京メトロ銀座線「末広町」駅 徒歩9分
駅をもっと見る
規模
地上10階 地下2階
竣工
1983年09月
耐震
新耐震
EV
1基
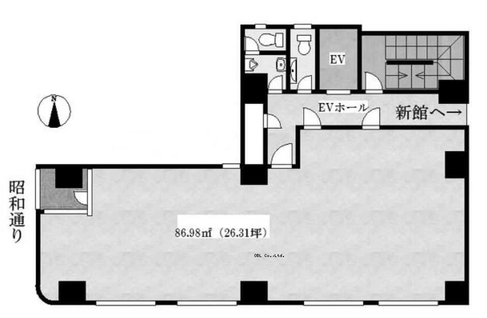
基準階面積
26.31坪
三恵ビル 募集中の区画
一括選択
選択クリア
階数
面積
賃料+共益費(税別)
敷金
入居日
図面
詳細
問合せ
気になる
8F
26.31坪
17,000円/坪
447,270円/月
10ヶ月
即日
詳細を見る
問合せ
チェックした区画を一括で
気になる
問合せ
他のビルの
募集中の区画を見つける
エリアで探す
路線・駅で探す
ビル名で探す
TOPへ
フリーワード検索
閉じる