エリアから
検索
路線・駅から
検索
フリーワード
検索
お問い合わせ
相談窓口
問合せ/資料請求
無料
0120-350-323
平日9:00~18:00
検索履歴
Myリスト
気になる
を集めて
Myリストを作りましょう!
エリアから検索
路線・駅から検索
検索履歴
Myリスト
お問い合わせ相談窓口
TEL
無料電話相談( 0120-350-323)
HOME
東京都
晴海センタービル
晴海センタービル
物件概要
所在地
東京都 中央区晴海2-5-24
最寄り駅
都営大江戸線「勝どき」駅 徒歩10分
東京メトロ有楽町線「月島」駅 徒歩15分
規模
地上10階
竣工
2006年11月
耐震
新耐震
EV
8基
基準階面積
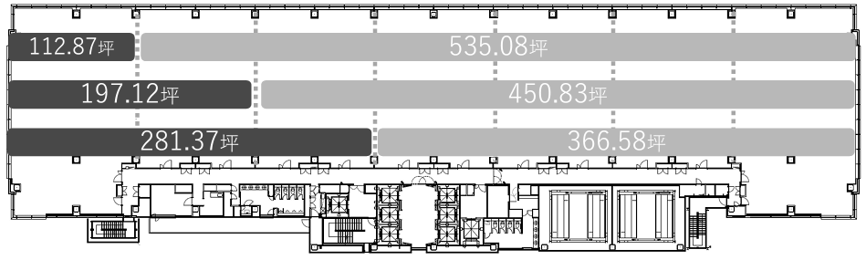
647.20坪
晴海センタービル 募集中の区画
一括選択
選択クリア
階数
面積
賃料+共益費(税別)
敷金
入居日
図面
詳細
問合せ
気になる
2F
647.95坪
お問合せください
12ヶ月
即日
詳細を見る
問合せ
3F
168.50坪
お問合せください
12ヶ月
即日
詳細を見る
問合せ
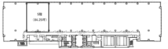
5F
84.25坪
お問合せください
12ヶ月
即日
詳細を見る
問合せ
9F
282.33坪
お問合せください
12ヶ月
即日
詳細を見る
問合せ
チェックした区画を一括で
気になる
問合せ
他のビルの
募集中の区画を見つける
エリアで探す
路線・駅で探す
ビル名で探す
TOPへ
フリーワード検索
閉じる