エリアから
検索
路線・駅から
検索
フリーワード
検索
お問い合わせ
相談窓口
問合せ/資料請求
無料
0120-350-323
平日9:00~18:00
検索履歴
Myリスト
気になる
を集めて
Myリストを作りましょう!
エリアから検索
路線・駅から検索
検索履歴
Myリスト
お問い合わせ相談窓口
TEL
無料電話相談( 0120-350-323)
HOME
東京都
スクエア日本橋ビル
スクエア日本橋ビル
物件概要
所在地
東京都 中央区日本橋小伝馬町1-7
最寄り駅
東京メトロ 「小伝馬町」駅 徒歩1分
日比谷線
JR 「新日本橋」駅 徒歩6分
総武線快速
都営地下鉄 「馬喰横山」駅 徒歩7分
都営新宿線
規模
地上8階 地下1階
竣工
1998年02月
耐震
新耐震
EV
2基
基準階面積
119.70坪
スクエア日本橋ビル 募集中の区画
一括選択
選択クリア
階数
面積
賃料+共益費(税別)
敷金
入居日
図面
詳細
問合せ
気になる
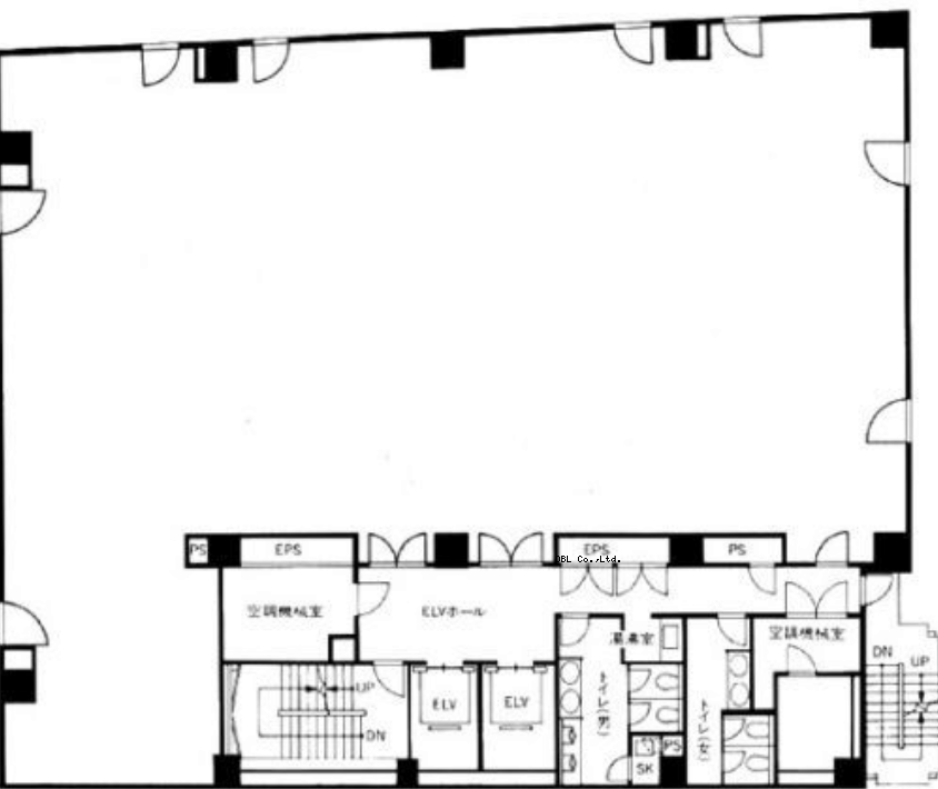
7F
119.70坪
お問合せください
12ヶ月
2026/2/1
詳細を見る
問合せ
チェックした区画を一括で
気になる
問合せ
他のビルの
募集中の区画を見つける
エリアで探す
路線・駅で探す
ビル名で探す
TOPへ
フリーワード検索
閉じる