エリアから
検索
路線・駅から
検索
フリーワード
検索
お問い合わせ
相談窓口
問合せ/資料請求
無料
0120-350-323
平日9:00~18:00
検索履歴
Myリスト
気になる
を集めて
Myリストを作りましょう!
エリアから検索
路線・駅から検索
検索履歴
Myリスト
お問い合わせ相談窓口
TEL
無料電話相談( 0120-350-323)
HOME
東京都
名鉄不動産竹橋ビル
名鉄不動産竹橋ビル
物件概要
所在地
東京都 千代田区神田錦町3-15
最寄り駅
東京メトロ 「竹橋」駅 徒歩4分
東西線
東京メトロ 「神保町」駅 徒歩7分
半蔵門線
都営地下鉄 「神保町」駅 徒歩7分
都営三田線 / 都営新宿線
東京メトロ 「大手町」駅 徒歩8分
千代田線 / 半蔵門線
規模
地上7階 地下1階
竣工
1992年10月
耐震
新耐震
EV
1基
基準階面積
85.73坪
名鉄不動産竹橋ビル 募集中の区画
一括選択
選択クリア
階数
面積
賃料+共益費(税別)
敷金
入居日
図面
詳細
問合せ
気になる
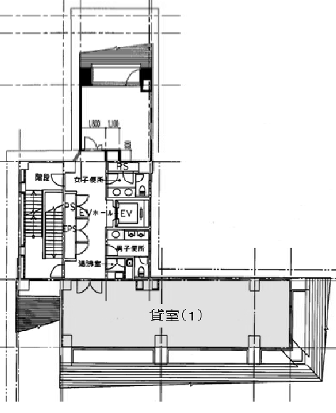
7F
24.30坪
お問合せください
12ヶ月
2026/3
詳細を見る
問合せ
チェックした区画を一括で
気になる
問合せ
他のビルの
募集中の区画を見つける
エリアで探す
路線・駅で探す
ビル名で探す
TOPへ
フリーワード検索
閉じる