エリアから
検索
路線・駅から
検索
フリーワード
検索
お問い合わせ
相談窓口
問合せ/資料請求
無料
0120-350-323
平日9:00~18:00
検索履歴
Myリスト
気になる
を集めて
Myリストを作りましょう!
エリアから検索
路線・駅から検索
検索履歴
Myリスト
お問い合わせ相談窓口
TEL
無料電話相談( 0120-350-323)
HOME
東京都
R.core HATCHOBORI
R.core HATCHOBORI
物件概要
所在地
東京都 中央区湊1-12-10
最寄り駅
JR 「八丁堀」駅 徒歩5分
京葉線
東京メトロ 「八丁堀」駅 徒歩5分
日比谷線
東京メトロ 「新富町」駅 徒歩9分
有楽町線
規模
地上8階
竣工
1989年08月
耐震
新耐震
EV
1基
基準階面積
39.55坪
R.core HATCHOBORI 募集中の区画
一括選択
選択クリア
階数
面積
賃料+共益費(税別)
敷金
入居日
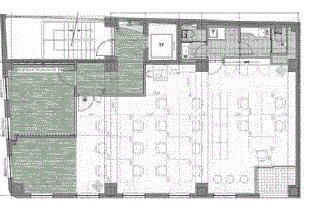
図面
詳細
問合せ
気になる
2F
31.91坪
25,000円/坪
797,750円/月
3ヶ月
2026/3下旬
詳細を見る
問合せ
5F
38.14坪
25,098円/坪
957,238円/月
3ヶ月
即日
詳細を見る
問合せ
チェックした区画を一括で
気になる
問合せ
他のビルの
募集中の区画を見つける
エリアで探す
路線・駅で探す
ビル名で探す
TOPへ
フリーワード検索
閉じる