エリアから
検索
路線・駅から
検索
フリーワード
検索
お問い合わせ
相談窓口
問合せ/資料請求
無料
0120-350-323
平日9:00~18:00
検索履歴
Myリスト
気になる
を集めて
Myリストを作りましょう!
エリアから検索
路線・駅から検索
検索履歴
Myリスト
お問い合わせ相談窓口
TEL
無料電話相談( 0120-350-323)
HOME
K-SHIBAビル
K-SHIBAビル
物件概要
所在地
東京都港区芝3-28-3
最寄り駅
都営地下鉄 「芝公園」駅 徒歩7分
都営三田線 / 都営大江戸線
都営地下鉄 「三田」駅 徒歩8分
都営三田線 / 都営浅草線
規模
地上4階
竣工
1991年11月
耐震
新耐震
EV
無
K-SHIBAビル 募集中の区画
一括選択
選択クリア
階数
面積
賃料+共益費(税別)
敷金
入居日
図面
詳細
問合せ
気になる
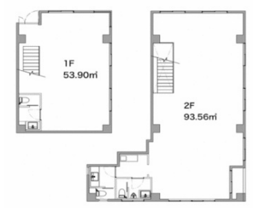
1-2F
44.61坪
19,996円/坪
892,000円/月
6ヶ月
相談
詳細を見る
問合せ
チェックした区画を一括で
気になる
問合せ
他のビルの
募集中の区画を見つける
エリアで探す
路線・駅で探す
ビル名で探す
TOPへ
フリーワード検索
閉じる