エリアから
検索
路線・駅から
検索
フリーワード
検索
お問い合わせ
相談窓口
問合せ/資料請求
無料
0120-350-323
平日9:00~18:00
検索履歴
Myリスト
気になる
を集めて
Myリストを作りましょう!
エリアから検索
路線・駅から検索
検索履歴
Myリスト
お問い合わせ相談窓口
TEL
無料電話相談( 0120-350-323)
HOME
東京都
紀陽ビル
紀陽ビル
物件概要
所在地
東京都 港区赤坂3-9-1
最寄り駅
東京メトロ 「赤坂見附」駅 徒歩1分
丸ノ内線 / 銀座線
東京メトロ 「永田町」駅 徒歩5分
半蔵門線 / 南北線 / 有楽町線
東京メトロ 「赤坂」駅 徒歩7分
千代田線
規模
地上7階 地下2階
竣工
1964年09月 リニューアル有
耐震
旧耐震
EV
1基
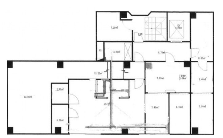
基準階面積
64.00坪
紀陽ビル 募集中の区画
一括選択
選択クリア
階数
面積
賃料+共益費(税別)
敷金
入居日
図面
詳細
問合せ
気になる
7F
48.00坪
16,000円/坪
768,000円/月
3ヶ月
即日
詳細を見る
問合せ
チェックした区画を一括で
気になる
問合せ
他のビルの
募集中の区画を見つける
エリアで探す
路線・駅で探す
ビル名で探す
TOPへ
フリーワード検索
閉じる